Located on the sought-after fringe of Murray Bridge East, sits a solid brick home on a large 1,531 m2 (approx.) allotment just minutes from the river. You will be able to envision yourself here with plenty of room to move for many years to come.
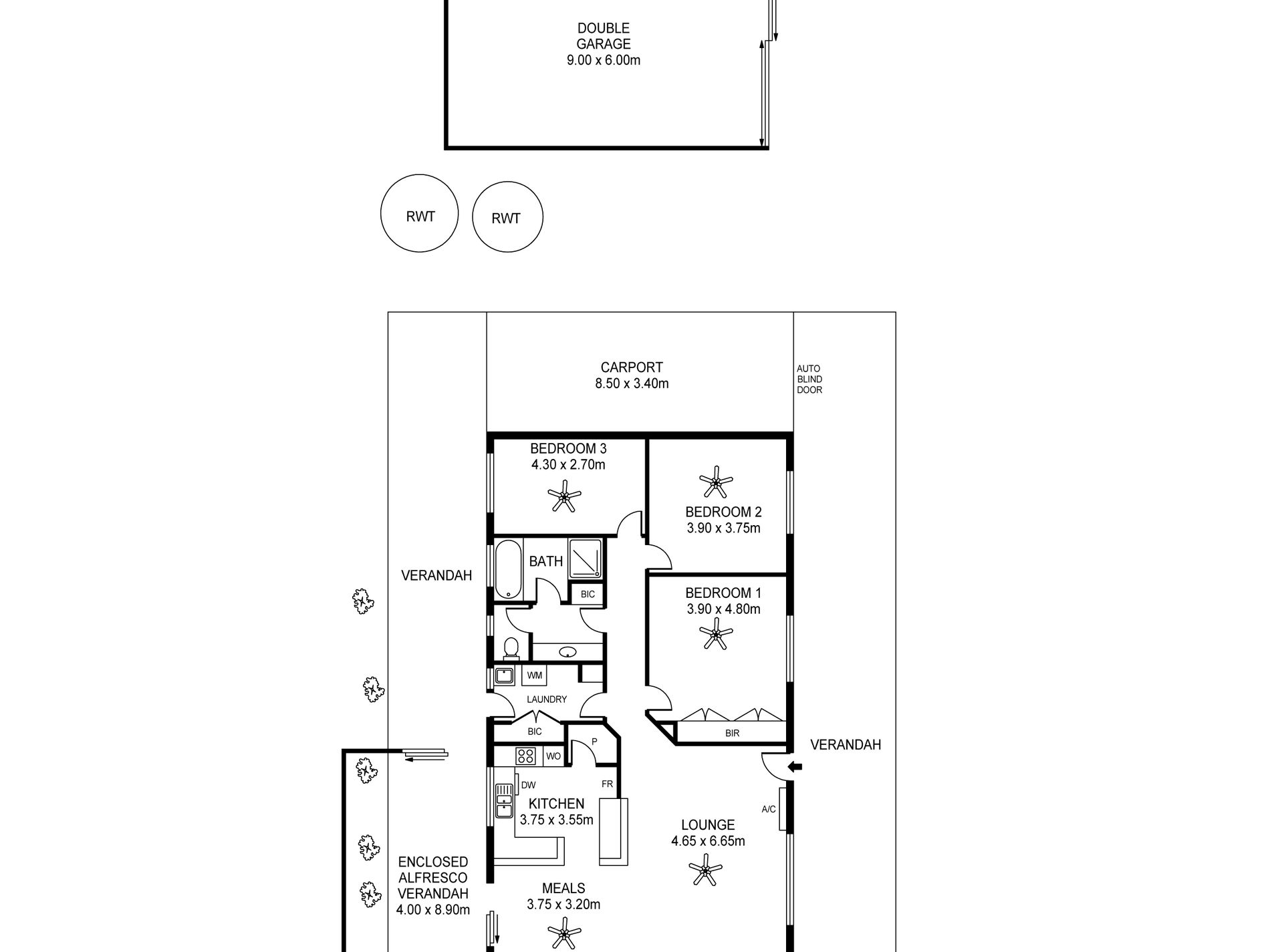
Entertaining is a breeze with the spacious light filled open plan kitchen, lounge, and dining area. The kitchen sits at the hub of the home with ample cupboard, bench space, dishwasher, and walk-in pantry. Dining area sits adjacent to the kitchen with s light filled lounge room and reverse cycle heating and cooling and ceiling fans throughout for all year-round comfort.
Three good sized bedrooms, main with built-in robes. Three-way family bathroom with separate vanity and toilet. Large laundry with direct access to the outside.
Step outside into the extensive paved enclosed alfresco entertaining area which flows seamlessly from the family area, creating a great entertaining space, whether it be inside or outside. The carport sits under the main roof with auto roller door. Easy access to the 9.00m x 6.00m double garage and separate carport with extra height that can accommodate caravan, boat, or trailer.
This spacious open plan residence provides an amazing family lifestyle with nothing to add or do. Only a short commute to Murray Bridge main street, shops, schools, public transport, and short commute to Mount Barker and CBD.
At a glance:
* Immaculate home on an elevated allotment of approx. (1,531 sqm)
* Set in a private location close to the river
* Open plan lounge & dining area
* Light filled kitchen with dishwasher, ample storage & walk-in pantry
* Main bedroom with built-in robe
* Three way bathroom
* Single carport UMR with auto roller door
* 9.00 x 6.00m garage & carport 3.50 x 7.40m
* Enclosed alfresco entertaining area adjacent family room
* x 2 13Kw batteries, 3.3 & 18Kw solar panels
* Rainwater storage plumbed into the home
* Low maintenance landscaped garden beds & sweeping lawns
* Wrap around verandah
* x 2 Reverse cycle air conditioning & ceiling fans throughout
* Close commute to Mount Barker and CBD
Features
- Air Conditioning
- Reverse Cycle Air Conditioning
- Fully Fenced
- Outdoor Entertainment Area
- Remote Garage
- Secure Parking
- Shed
- Built-in Wardrobes
- Dishwasher
- Workshop
- Solar Panels
- Water Tank

















































